
Leistungsstarke Doppelpumpenlösung für sichere Abwasserförderung bei höchsten Anforderungen
#Pumpstation
#Abwassertechnik
#Hebeschacht
#Kommunaltechnik
#Entwässerung
#Doppelpumpe
#Tiefbau
#Wassertechnik
#PESchacht
RoPump DN 1200 - Hebeschacht für kommunales Abwasser
Die RoPump DN 1200 ist eine leistungsstarke Hebeschachtlösung zur Förderung von Abwasser und Niederschlagswasser, wenn keine Entwässerung im freien Gefälle möglich ist.
Sie sorgt für eine rückstausichere Ableitung von Abwasser unterhalb der Rückstauebene auf ein höherliegendes Niveau – zuverlässig und vollautomatisch.
Konzipiert für kommunale Anwendungen und hohe Zuflussmengen, bietet die DN 1200 maximale Betriebssicherheit durch ein integriertes Doppelpumpensystem.
Typische Einsatzbereiche:
Kommunale Abwasserinfrastruktur
Förderung von Abwasser in Kanalnetzen ohne ausreichendes Gefälle
Große Wohnanlagen & Quartiere
Entwässerung mehrerer Gebäude oder ganzer Wohnkomplexe
Gewerbe- und Industrieanlagen
Ableitung großer Mengen an Schmutz- und Prozesswasser
RoPump DN 1200 im Detail.
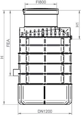
Im Zentrum der Anlage steht ein widerstandsfähiger Schacht aus Polyethylen (PE), der speziell für die Anforderungen im Erdreich sowie im laufenden Betrieb ausgelegt ist. Das Material ist korrosionsfrei, langlebig und hält sowohl mechanischen Belastungen während der Installation als auch dauerhaften Beanspruchungen im Betrieb stand. Die kompakte Bauweise mit DN 1200 ermöglicht eine platzsparende Integration bei gleichzeitig hoher Leistungsfähigkeit.
Ausgestattet mit zwei Tauchpumpen bietet die DN 1200 eine erhöhte Betriebssicherheit und eignet sich besonders für Anwendungen mit höheren Zuflussmengen oder erhöhten Anforderungen an Ausfallsicherheit.
Lieferumfang:
- Schacht DN 1200 aus Polyethylen [PE]
- 2 Tauchpumpen, wahlweise FEKA VS 1200 oder PENTAX DV210
- 2x Schwimmerschalter
- 2x Rückschlagventile
- 2x Absperrventile
- Druckleitung
- Feka VS mit Aushebevorrichtung
Die Steuerung und die Abdeckung sind nicht im Lieferumfang enthalten. Steuerung und weitere Optionen siehe Zubehör.
Betrieb : Wenn der Abwasserspiegel in der Pumpkammer eine bestimmte Höhe (Niveau) erreicht, wird die Pumpe eingeschaltet. Das Ein- und Ausschalten der Pumpen erfolgt über Niveauschalter oder entsprechende Sensoren. Die Größe des Pumpenraums und der Pegel, bei dem die Pumpe eingeschaltet werden soll, werden durch die Durchflussmenge, die Kapazität der Pumpen oder die Anzahl der Pumpenschaltungen pro Stunde bestimmt. In der Pumpstation sind immer zwei Pumpen installiert, so dass bei Ausfall einer Pumpe der reibungslose Betrieb der Pumpstation weiterhin gewährleistet ist. Die Druckleitung ist mit Rückschlagventilen ausgestattet, damit kein Wasser aus der Druckleitung in die Pumpstation zurückfließen kann. Ein Absperrventil an der Druckleitung muss bei einem Ausfall der Pumpen geschlossen werden.
Technische Daten und Maße
Vorteile
Die Hauspumpstation RoPump DN 1200 verfügt über eine Vielzahl von Vorteilen. Hier ein Überblick:
Wirtschaftlichkeit & Effizienz
- Doppelpumpensystem für hohe Förderleistung und gleichmäßige Lastverteilung
- Automatischer Betrieb über Niveauschalter → bedarfsgerechte Steuerung
- Auslegung flexibel an Durchflussmenge und Pumpenleistung anpassbar
- Effiziente Förderung großer Abwassermengen im Dauerbetrieb
Sicherheit & Statik
- Zwei Pumpen für redundanten Betrieb und Ausfallsicherheit
- Rückschlagventile verhindern Rückfluss in den Schacht
- Absperrventile ermöglichen sichere Wartung und Störfallmanagement
- Robuster PE-Behälter → korrosionsbeständig und widerstandsfähig gegen Einbau- und Betriebsbelastungen
- Rückstausichere Ableitung gemäß Anforderungen unterhalb der Rückstauebene
Nachhaltigkeit & Wartung
- Langlebiger, korrosionsfreier Polyethylen-Schacht
- Wartungsfreundlicher Aufbau mit gut zugänglichen Komponenten
- Optional: Auffangwanne zum Schutz vor Verstopfung und Beschädigung der Pumpen
- Zuverlässiger Dauerbetrieb durch automatische Steuerung und robuste Technik
Zubehör
Folgendes Zubehör ist für die RoPump Hauspumpstation verfügbar:
Artikelnummer | Beschreibung |
|---|---|
7200088830 | Steuerung für Pumpstation SMART EVO 1 (für eine Pumpe 230 V) |
1290087 | Steuerung für Pumpstation SMART EVO 1
(für eine Pumpe 230 V mit GSM Modul) |
720008840 | Steuerung für Pumpstation SMART EVO 2 (für 2 Pumpen 230 V) |
1290088 | Steuerung für Pumpstation SMART EVO 2
(für 2 Pumpen 230 V und GSM Modul) |
1290089 | Steuerung für Pumpstation SMART EVO 2 3F 7,5 kW |
1290090 | Steuerung für Pumpstation EXPRESS D2-MONO |
Artikelnummer | Beschreibung |
|---|---|
R000386 | Führung für den Grobstoffabscheider DN600 I Höhe: 725 mm |
R000387 | Führung für den Grobstoffabscheider DN600 I Höhe: 1025 mm |
R000388 | Führung für den Grobstoffabscheider DN800 I Höhe: 725 mm |
R000389 | Führung für den Grobstoffabscheider DN800 I Höhe: 1025 mm |
R000416 | Führung für den Grobstoffabscheider DN1200 I Höhe: 1077 mm |
Artikelnummer | Beschreibung |
|---|---|
7200088310 | Außensäule P4 (455 x 235 x 1350 mm) |
7200088890 | Außensäule P4.5 (402 x 300 x 1280 mm) |
7200088670 | Außensäule P5 (625 x 420 x 1400 mm) |
7700000020 | Domverlängerung für RoPump DN600 (600 x 750 mm) |
7106548710 | Domverlängerung für RoPump DN800 (800 x 750 mm) |
7106548720 | Domverlängerung für RoPump DN1000 (1000 x 750 mm) |
Installation
Die Installation der RoPump ist aufgrund ihrer Form und ihres geringen Gewichts einfach. Genauere Informationen finden Sie in der Einbauanleitung.
Weitere RoPump-Varianten
RoPump DN 600
Kompakte Pumpstation mit einer Pumpe und 600 mm Schacht – ideal für kleinere Anwendungen.
RoPump DN 800
Doppelpumpensystem mit 800 mm Schacht – für höhere Fördermengen und mehr Sicherheit.
RoPump DN 1000
Zwei Pumpen, 1000 mm Schacht – für größere Gebäude und gewerbliche Nutzung.
RoPump DN 1200
Leistungsstarke Lösung mit zwei Pumpen und 1200 mm Schacht – für hohe Abwassermengen und große Projekte.
Aktuelle Auswahl
FAQ
Wenn Abwasser oder Niederschlagswasser nicht im freien Gefälle abgeleitet werden kann, insbesondere im kommunalen Bereich.
Zur Sicherstellung des Betriebs auch bei Ausfall einer Pumpe (Redundanz).
Automatisch über Niveauschalter, die die Pumpen abhängig vom Füllstand steuern.
Aus korrosionsbeständigem Polyethylen (PE).
Optional kann eine Auffangwanne installiert werden, um Feststoffe zurückzuhalten.







